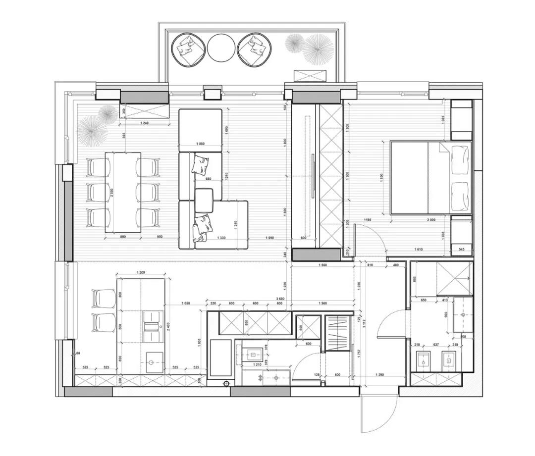
平面圖▽
現代的黑色家居有著強烈的個人風格表現力,室內設計中把黑色用得好,不僅有個性、酷帥,更能凸顯出高級感。

優雅線條勾勒的黑色護墻板包圍這個空間,卻不顯沉悶,是因為有了燈光的加入,高貴感驟增。
空間不大,但設計有心,注重細節,每一個小點綴都是不經意間撩撥著我們的眼球。黑白灰,最是相配,極簡帶來的極美。
在大面積落地窗和合理光源照亮的臥室,黑色不會壓抑,告別了千篇一律的生活,更有格調的裝飾才能更好的彰顯自己的個性與追求。


衛生間黑白灰的絕妙搭配,從凝重的黑到輕盈的白,空間似乎都逐漸舒展開來一般。看似明亮張揚,但卻依舊有所收斂,這可能就是高級黑的迷人之處了。

PROJECT TEAM
Z.Design architecture,由Роман Зуб和Valentina Praslova創建,設計新穎,舒適且獨特,非常現代。保守的極簡主義和精致色彩組合,形式和色彩的禁欲主義。


