Taras Belik新作,一個三口家的公寓,總面積97㎡,天花板高度2.7m。有一個超過5㎡的陽臺,毗鄰客廳,并把它變成了一個開放的休息區。空間采用翡翠色使室內更加豐富和深邃。

一個面積為34.8㎡的開放空間,將廚房、餐廳和休息區統一起來。空間的統一色彩是濃郁的翡翠色,其明亮的色調在白色的環境中顯得特別有優勢。為了照亮餐廳空間,選擇了紐約設計師Beck Brittain Seeds的吊燈。
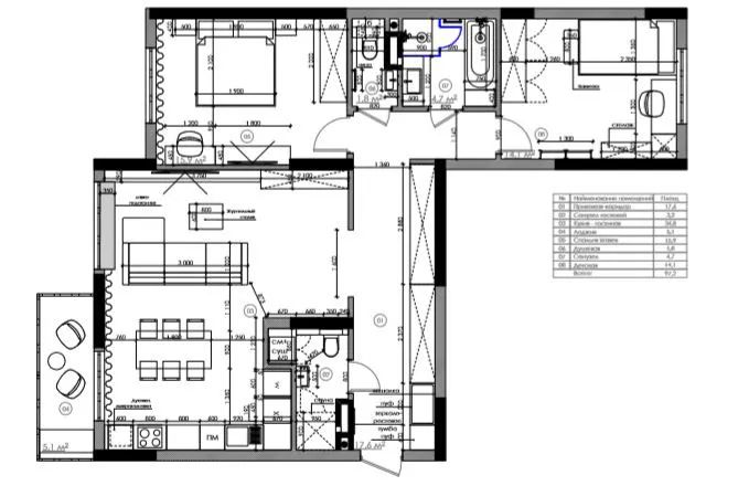
公寓總共有三間浴室,其中兩個面積為4.7㎡和3.2㎡,另一個是1.8㎡的淋浴間。現代創新技術使設計無縫的淋浴房成為可能,合理布局,使空間看起來更大。
色彩豐富的主臥,背景郁郁蔥蔥的叢林畫面,相當吸引人。床的右側是一個帶透明門的衣柜,其他還包括一個電視柜,一臺電視機,一個梳妝臺。沒有主燈,床頭兩側放置水滴形式的吊燈,仿佛落在鮮綠色的葉子上。
一個獨立的客用浴室,墻面的裝飾,使用了這間公寓內部相同的材料,強調統一的形式。天然橡木制成的細節在浴室的白色墻壁的背景下脫穎而出,并與空間的紋理相結合。
兒童區約14㎡,設置了工作場所、休閑區、運動角和存儲系統。這里有火紅色和綠松石色,房間的墻壁、運動器材、衣服和書籍的衣柜都是用它們的顏色來決定的。



